Προς δημοπράτηση ο νέος Βρεφονηπιακός Σταθμός της Κύμης, συνολικού προϋπολογισμού 1 εκατ. ευρώ, ο οποίος μπαίνει επισήμως σε τροχιά κατασκευής.
Ειδικότερα, εχθές Τρίτη 23 Ιανουαρίου 2024 η Δημοτική Επιτροπή του Δήμου Κύμης Αλιβερίου ψήφισε την έγκριση των όρων διακήρυξης για τον νέο Βρεφονηπιακό Σταθμό Κύμης, ανοίγοντας τον δρόμο για τη δημοπράτησή του. Αυτή η απόφαση, η πρώτη της Δημοτικής Επιτροπής για τη νέα δημοτική περίοδο, αντικατοπτρίζει την υψηλή προτεραιότητα που δίνει η νέα δημοτική αρχή σε αυτό το σημαντικό έργο.
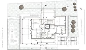
Το έργο αφορά στην ανέγερση κτηρίου όπου θα στεγαστεί ο νέος Βρεφονηπιακός Σταθμός της Κύμης, με δυναμικότητα 25 νηπίων και 15 βρεφών, προσφέροντας έναν χώρο προσαρμοσμένο στις ανάγκες τους. Το κτήριο θα είναι διώροφο, συνολικής έκτασης 513,17 τ.μ., ενώ το οικόπεδο είναι συνολικής επιφάνειας 984,19 τ.μ. Ο Βρεφονηπιακός Σταθμός θα είναι πλήρως εξοπλισμένος με κατάλληλη επίπλωση, παιχνίδια, παιδική χαρά, έπιπλα ύπνου, ηλεκτρικές και ηλεκτρονικές συσκευές κ.α.
Ο συνολικός προϋπολογισμός του έργου είναι 1.005.953,52 ευρώ, συμπεριλαμβανομένου ΦΠΑ και χρηματοδοτείται από το πρόγραμμα «Αντώνης Τρίτσης».
Οι διαδικασίες δημοπράτησης θα ξεκινήσουν σύντομα, ανοίγοντας τον δρόμο για την υλοποίηση αυτού του σημαντικού έργου που θα συμβάλει στη βελτίωση της παιδικής φροντίδας στην περιοχή.


